Interessentengemeinschaft 55+
in Rotenburg (Wümme)
Email: Info.55plus@gmx.de
Dezember 2020
Gemeinschaftshaus –
eine kurze Objektbeschreibung
Ausgangslage
Reserviertes Grundstück 28,75 x 13,65 m = 393 qm
Parzelle 12/9 im Baugebiet Brockeler Str. II
Vorgaben des Bebauungsplans:
nicht mehr als 40 % Überbauung durch Gebäude und Terrasse
3 m Grenzabstand zu allen Seiten
Traufhöhe max. 3 m
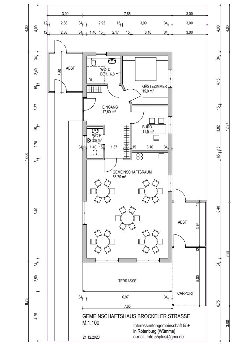
Anforderungen und Wünsche der IG
Gemeinschaftsraum für ca. 30 Personen (Sitzplätze am Tisch), weitere Sitzplätze möglich
Büroraum für einen Hauswirtschafts- und Pflegedienst
Gästezimmer mit Doppelbett
Sanitärräume mit Dusche/WC und separaten Herren-WC
großer Eingangsbereich mit ausreichend Platz für Garderobenablagen
Küchenzeile
überdachter Aufenthaltsbereich (Terrasse)
Abstellräume für Gartenmöbel und -geräte sowie gemeinschaftlich genutzte Geräte und Werkzeuge
PKW-Stellplatz mit E-Wallbox und/oder Mietfahrzeug
Dachvorbereitung für Photovoltaik der Stadtwerke
Planzeichnungen der IG
Ansichten
Grundriss